物件詳細:
南向き,4+1間取り。
中洲控股センターは深圳・後海大道のCBDに位置し、深圳湾に面しています。西は南海大道、東は香港・新界と海を隔てて向かい合い、北に深圳大学とハイテクパーク、南に南油開発区があります。深圳市政府により「特区西部の商業・ビジネス・文化の中心」と位置付けられ、南山文化中心区で最も環境配慮型のビルとして注目されています。
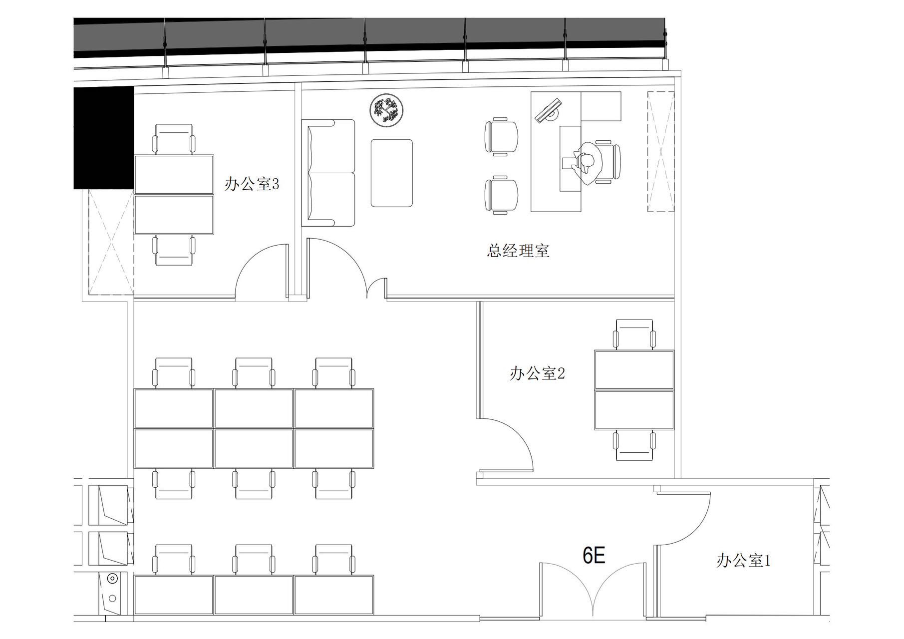
間取り図:

チャールズハウスは深センのアパート探しで深セン赴任、駐在の方々には、部屋探し・賃貸物件サービスを提供しておる。
Wechatお持ちの方々には、以下の弊社の公式アカウントをフォロしていただければ、深センの様々の生活情報もゲット!

チャールズハウスは深センのアパート探しで深セン赴任、駐在の方々には、部屋探し・賃貸物件サービスを提供しておる。
Wechatお持ちの方々には、以下の弊社の公式アカウントをフォロしていただければ、深センの様々の生活情報もゲット!
